Descripción

Ubicado en barrio Cordón, característico por su movimiento juvenil, centros educativos y comercios.
Encontramos el proyecto a sólo 1 cuadra de la principal avenida comercial: 18 de julio y a 2 cuadras de Av. Bvar Artigas.
A tan sólo 15 minutos caminando nos encontramos con el Parque de los Aliados y el Parque Rodó
A 10 cuadras a la redonda podemos encontrar las facultades de Derecho, Católica, Arquitectura, Odontología y Bellas Artes.

El Proyecto

Ventura Go! es una propuesta residencial que contempla el estilo de vida de las nuevas generaciones y brindará nuevas oportunidades de encuentro sin modificar la intimidad de los residentes ni el funcionamiento del condominio tradicional.

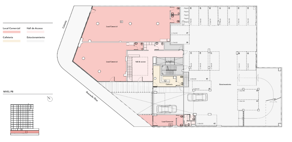
Se trata de un edificio de 14 pisos en los que se distribuyen unidades monoambientes y de 1 y 2 dormitorios. En su primer nivel se preverá una zona de esparcimiento y contacto con la comunidad dispuesta de co-work, gimnasio, locker pick up, lavandería y dos barbacoas equipadas para disfrutar con amigos. A su vez, tendrá portería 24 horas y control de acceso digital a las unidades, así como reja perimetral y cerca eléctrica para brindar mayor seguridad a los usuarios.

Cada unidad se entregará con placares sobre y bajo mesada de la cocina, espejo y mueble en cada baño, cortinas de enrollar motorizadas en dormitorios y mesadas de cuarzo en todas las unidades. Por otro lado, los muros separativos entre unidades serán de hormigón celular y los pisos en espacios comunes y dormitorio de listones texturados símil madera en alto tránsito.

En cuanto a las nuevas tecnologías, contará con control de acceso desde smartphone y comunicación interna digital a través de pantallas en los espacios comunes. Se utilizará iluminación led y elementos sustentables con previsión para ser un edificio autosustentable.

Caracteristicas de la Unidad:
-Cocina Americana
– Cortinas de enrollar
– Placard en Cocina
– Portero eléctrico
– Preinstalación de A/A
– Previsión para Lavarropa
– Terraza / Balcón

Caracteristicas del edificio:
– Ascensor
– Barbacoa común
– Cámaras de seguridad
– GYM
– Lavandería
– Portería
– Rejas
– Sala de Coworking
– Salón de usos múltiples
– Sistema de alarma
– Wi Fi

Vivienda Promovida
Los apartamentos amparados por la Ley de Vivienda Promovida brinda grandes beneficios a los compradores

Exoneración del ITP (2% sobre el valor de Catastro)
Exoneración del IVA
Exoneración del impuesto al patrimonio por 10 años
Exoneración de hasta el 100% del IRPF a las rentas por 10 años dependiendo la zona del inmueble

Detalles

Cocheras
83
Antigüedad
Estrenar
Actualizado en agosto 3, 2025 a 8:28 pm

Información de contacto

Sebastian Fente
  • Alba Perazza
  • +598 92 120 702

Quiero saber más sobre esta propiedad

Propiedades similares

Unidades

Local Comercial
Consultar precio

18.000.00 m²

1 baño/s

Apartamento
USD185900.00

1 ambientes

50.902.300.00 m²

1 dormitorio/s

1 baño/s

Apartamento
USD153900.00

1 ambientes

36.302.100.00 m²

1 dormitorio/s

1 baño/s

Comparar listados

Comparar
Abrir chat